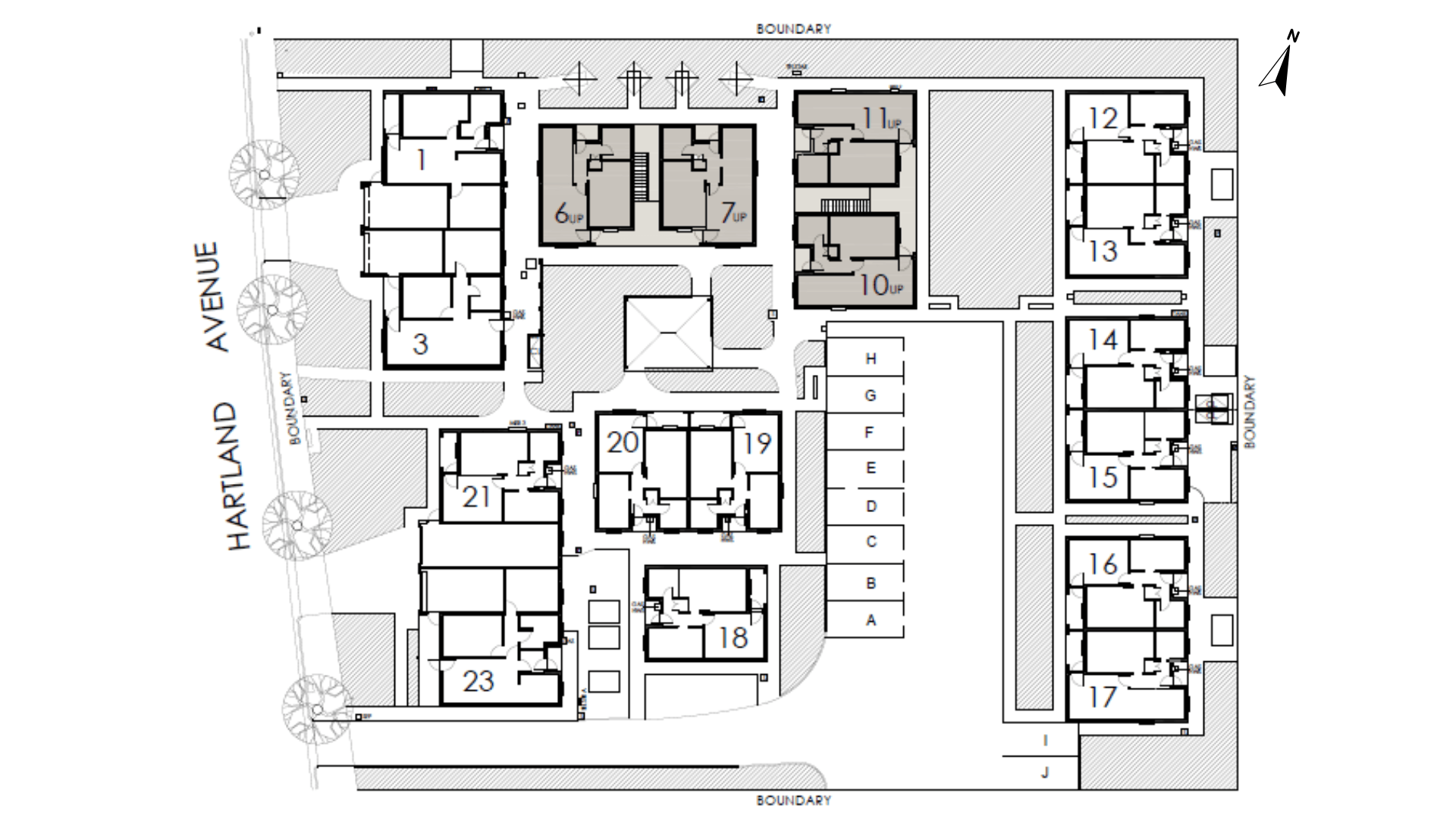
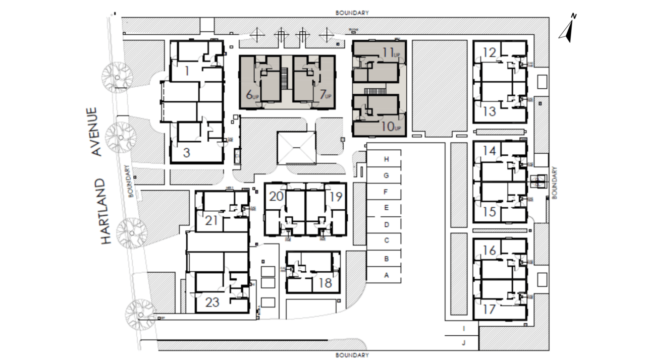
Black Forest – Unit 10 Robertson Miller Lodge
Thoughtful Living in a Peaceful Setting
Level 1, 1 – 3 Heartland Avenue, Black Forest
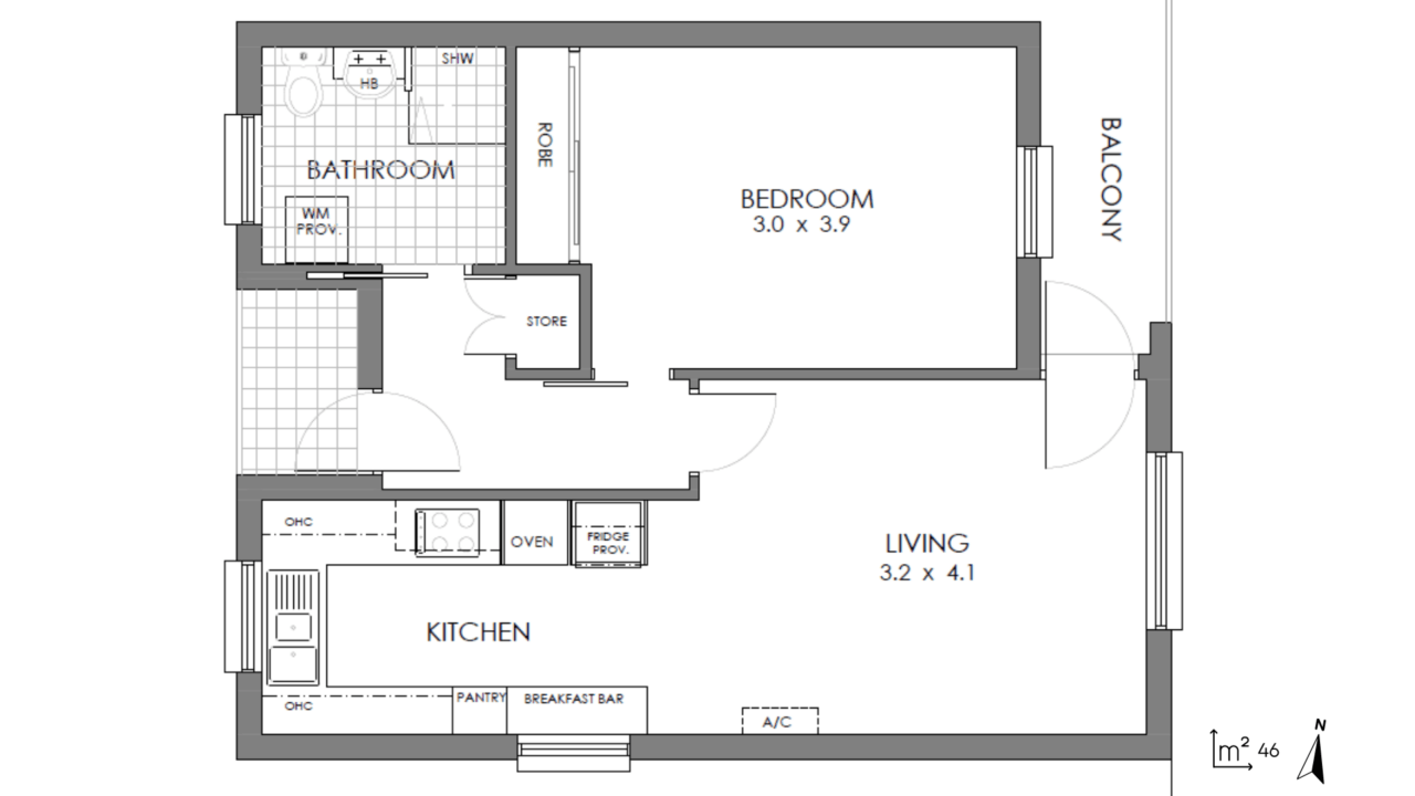
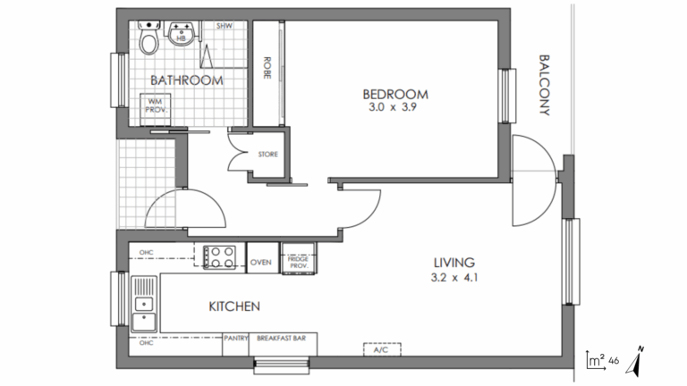
Discover the perfect blend of comfort and convenience at Robertson Miller Lodge, Black Forest. This updated one bedroom unit offers a relaxed, low maintenance lifestyle in a peaceful community with the tram line just a short walk away. Enjoy easy access to Glenelg, the city ideal for those seeking independence and connection in a well located setting.
Unit Features
- Spacious bedroom with built-in wardrobe
- Open-plan living and dining area
- Modern kitchen with pantry and easy access layout
- Combined bathroom and laundry
- Private Balcony for outdoor relaxation
- Split system air-conditioning
Village Features
- Serene, well-maintained gardens
- Convenient public transport
- Nearby parks, groceries and dining options.
Don’t miss your opportunity to live in this beautifully maintained and incredibly convenient unit in Black Forest. It’s time to get MORE out of life and experience the ease and accessibility this location offers.
Don’t just retire, thrive!
ECH Retirement Living | Get MORE out of life
Contact us at 8159 4700 for more information.
*Price subject to change. Property subject to availability.
Photos are for illustrative purposes only. Some images may show items not included with the property, such as furniture and décor.
Highlights
-
Air conditioning
-
1 bedroom
-
Living room
-
Outside space - balcony
-
Parking
-
Pet friendly - Cats only
-
Upstairs
70% return on exit
ECH is a profit-for-purpose charity, reinvesting all profits to improve services for ageing South Australians. Refund estimates are based on living in an ECH retirement village for four or more years, excluding weekly maintenance fees. Shorter tenures may result in higher refunds.
Retirement Living Calculator
Your estimated refund amount
$280,000
| You pay upfront: | $400,000 | 100% |
| Your estimated refund amount would be: | $280,000 | 70% |
| We will retain a management fee of: | $120,000 | 30% |
This estimate is based on your accommodation period being 3 years or more. Weekly maintenance fees excluded. Shorter tenures may result in higher refunds. ECH is a profit-for-purpose charity, reinvesting all profits to improve services for ageing South Australians.
Enquire about this property
Property Enquiry
Black Forest – Unit 10 Robertson Miller Lodge
Property Enquiry
Keep browsing
More properties in surrounding areas
-
Unit 10, 1 – 3 Heartland Avenue, Black Forest
Robertson Miller Lodge, Black Forest
$258,000-
1
-
1
-
Available
-
46
-
-
-
-
-
-
Return to our property search to browse more properties.
Browse properties