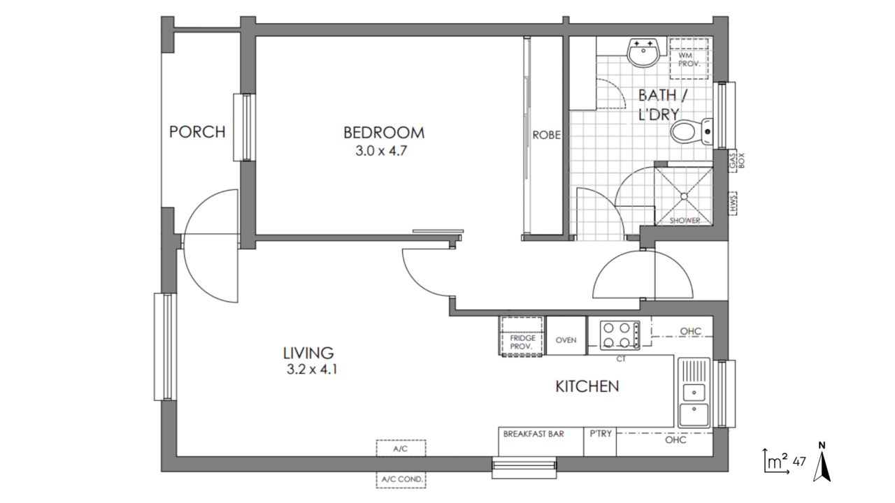
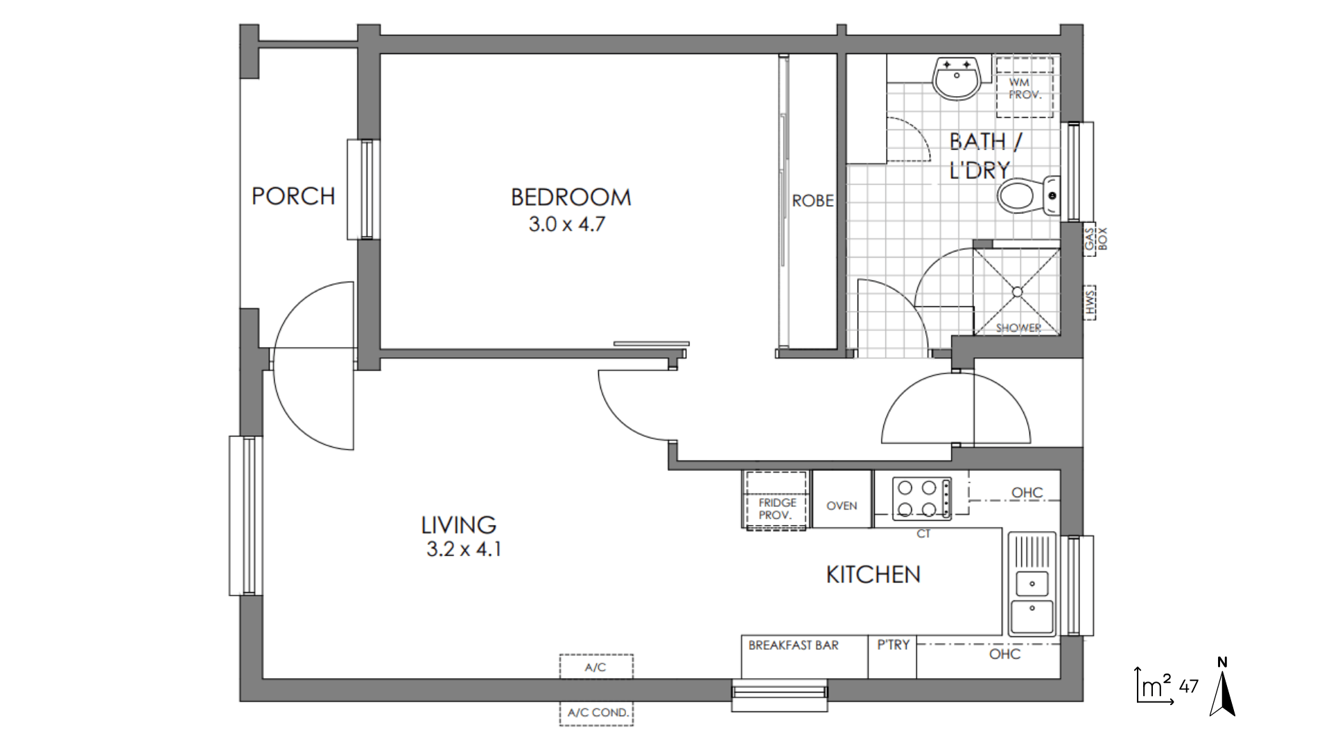
Unit 10, 19 Riverdale Road, Myrtle Bank
Robinson Lodge, Myrtle Bank
Expression of Interest-
1
-
1
-
Available
-
48
Expression of Interest
Myrtle Bank
Select a popular search term, or search for something else.