
Enquire about this property
Property Enquiry
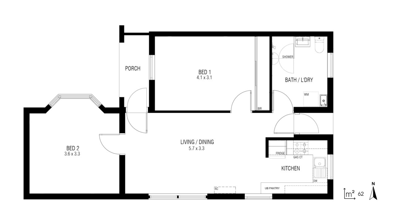
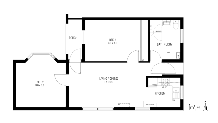
Kensington Gardens – Unit 16 Sidney Batty Court
Property Enquiry

$405,000
Kensington Gardens
Kensington Gardens – Unit 16 Sidney Batty Court
$405,000
Kensington Gardens
Select a popular search term, or search for something else.