Fullarton – Unit 1 Rundle Court
Your Perfect Independent Retirement Living Awaits
388 Fullarton Road, Fullarton
Located in the heart of Fullarton at ECH Rundle Court, this comfortable one-bedroom unit is just minutes from the CBD and several popular shopping destinations, offering the perfect blend of convenience, lifestyle and community connection.
Unit Features
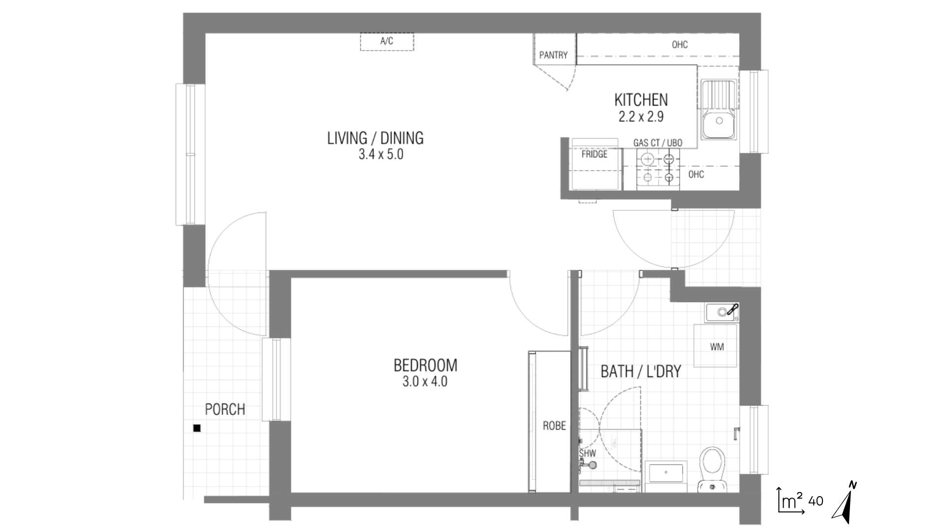
- Spacious bedroom with built-in wardrobe
- Open-plan living and dining area
- Modern kitchen with pantry and easy access layout
- Combined bathroom and laundry
- Private porch for outdoor relaxation
- Split system air-conditioning
Village Features
- Communal Pergola Area
- Ideally located near public transport
- Close to three major shopping precincts and the CBD
Don’t miss your opportunity to live in this beautifully maintained and incredibly convenient unit in Fullarton. It’s time to get MORE out of life and experience the ease and accessibility this location offers.
Don’t just retire, thrive!
ECH Retirement Living | Get MORE out of life
Contact us at 8159 4700 for more information.
*Price Subject to change. Property subject to availability
Photos are for illustrative purposes only. Some images may show items not included with the property, such as furniture and décor.
Highlights
-
Air conditioning
-
1 bedroom
-
Living room
-
Parking
70% return on exit
ECH is a profit-for-purpose charity, reinvesting all profits to improve services for ageing South Australians. Refund estimates are based on living in an ECH retirement village for four or more years, excluding weekly maintenance fees. Shorter tenures may result in higher refunds.
Retirement Living Calculator
Your estimated refund amount
$280,000
| You pay upfront: | $400,000 | 100% |
| Your estimated refund amount would be: | $280,000 | 70% |
| We will retain a management fee of: | $120,000 | 30% |
This estimate is based on your accommodation period being 3 years or more. Weekly maintenance fees excluded. Shorter tenures may result in higher refunds. ECH is a profit-for-purpose charity, reinvesting all profits to improve services for ageing South Australians.
Enquire about this property
Keep browsing
More properties in surrounding areas
-
-
-
-
Unit 12, 472 Fullarton Road, Myrtle Bank
Arch Prime Lodge, Myrtle Bank
Contact Agent-
2
-
1
-
Available
-
62
-
-
Return to our property search to browse more properties.
Browse properties