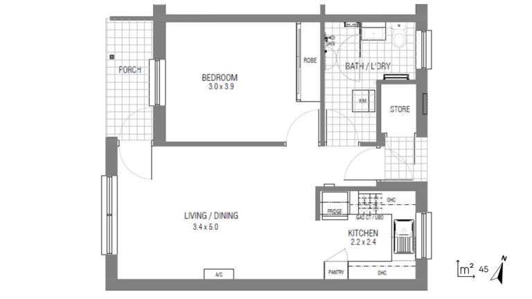
This beautifully presented one – bedroom unit offers an exceptional blend of comfort, practicality and lifestyle ease – providing a warm and welcoming space where everything you need is thoughtfully within reach. Its the ideal setting for independent living with all the benefits of a connected, low maintenance lifestyle.
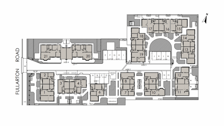
Unit Features
Comfortable carpeted bedroom: with built-in wardrobe
Open-plan living and dining area: with hardwood flooring
Excellent Storage: Plenty of space to keep your belongings organised
Comfort year-round: Stay comfortable with air-conditioning and block-out blinds
Fresh updates throughout: for a low-maintenance lifestyle
Village Features
Pergola Area: Perfect for outdoor relaxation and socialising
Easy access to public transport: with nearby bus stop
A short stroll for Groceries : retail stores, and dining options
Parks and Recreation: There are several parks nearby, offering opportunities for outdoor activities and relaxation
Don’t miss your opportunity to live in this beautifully maintained and incredibly convenient unit in Fullarton. It’s time to get MORE out of life and experience the ease and accessibility this location offers.
Don’t just retire, thrive!
ECH Retirement Living | Get MORE out of life
Contact us at 8159 4700 for more information.
*Price Subject to change. Property subject to availability
Photos are for illustrative purposes only. Some images may show items not included with the property, such as furniture and décor.
Highlights
Air conditioning
1 bedroom
Living room
Parking
Pet Free Village
70% return on exit
ECH is a profit-for-purpose charity, reinvesting all profits to improve services for ageing South Australians. Refund estimates are based on living in an ECH retirement village for four or more years, excluding weekly maintenance fees. Shorter tenures may result in higher refunds.
Retirement Living Calculator
Your estimated refund amount
$280,000
You pay upfront:
$400,000
100%
Your estimated refund amount would be:
$280,000
70%
We will retain a management fee of:
$120,000
30%
This estimate is based on your accommodation period being 3 years or more. Weekly maintenance fees excluded. Shorter tenures may result in higher refunds. ECH is a profit-for-purpose charity, reinvesting all profits to improve services for ageing South Australians.