Highgate – Unit 4 Bright Court
Discover your Peaceful Retirement in Highgate
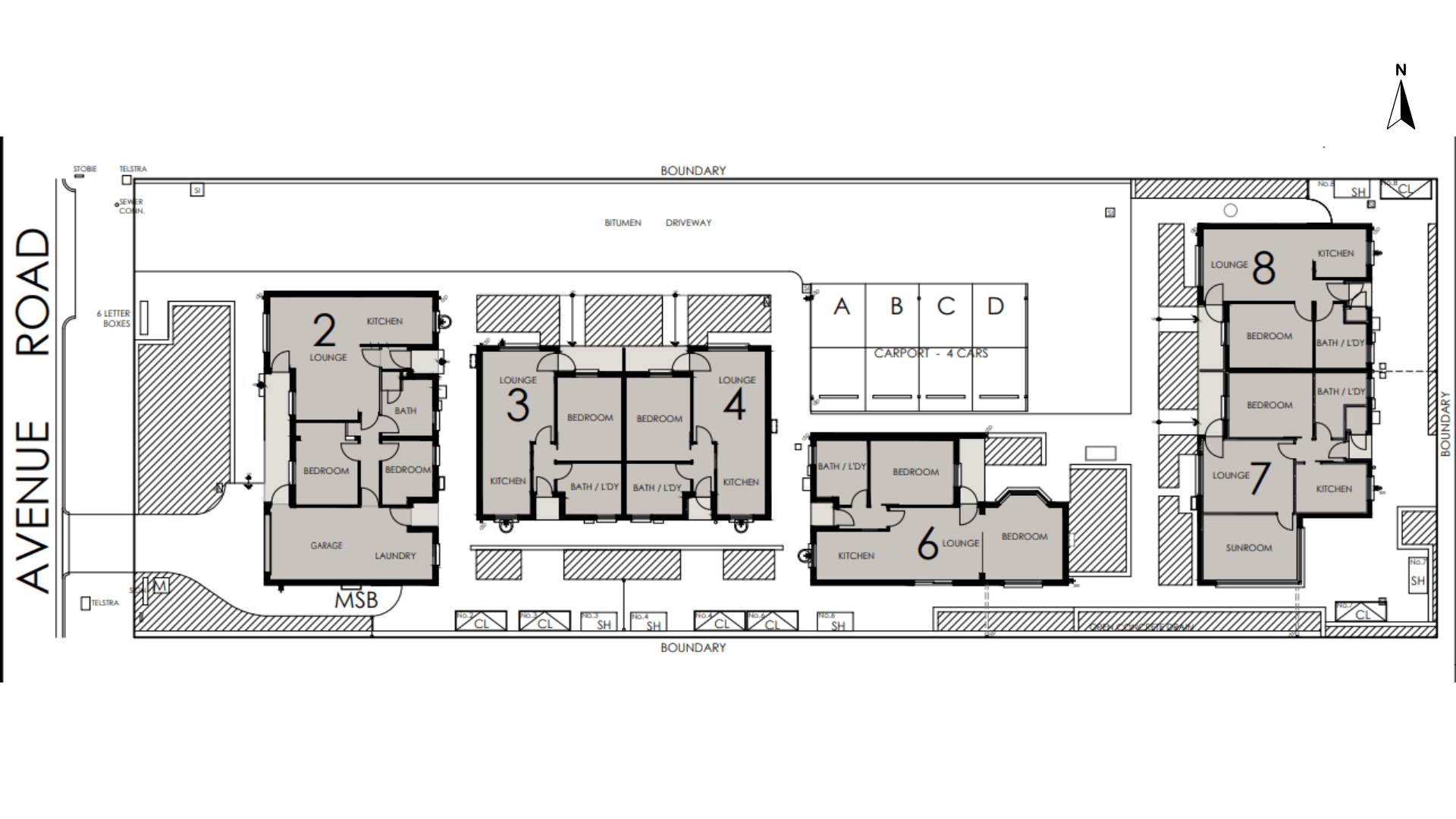
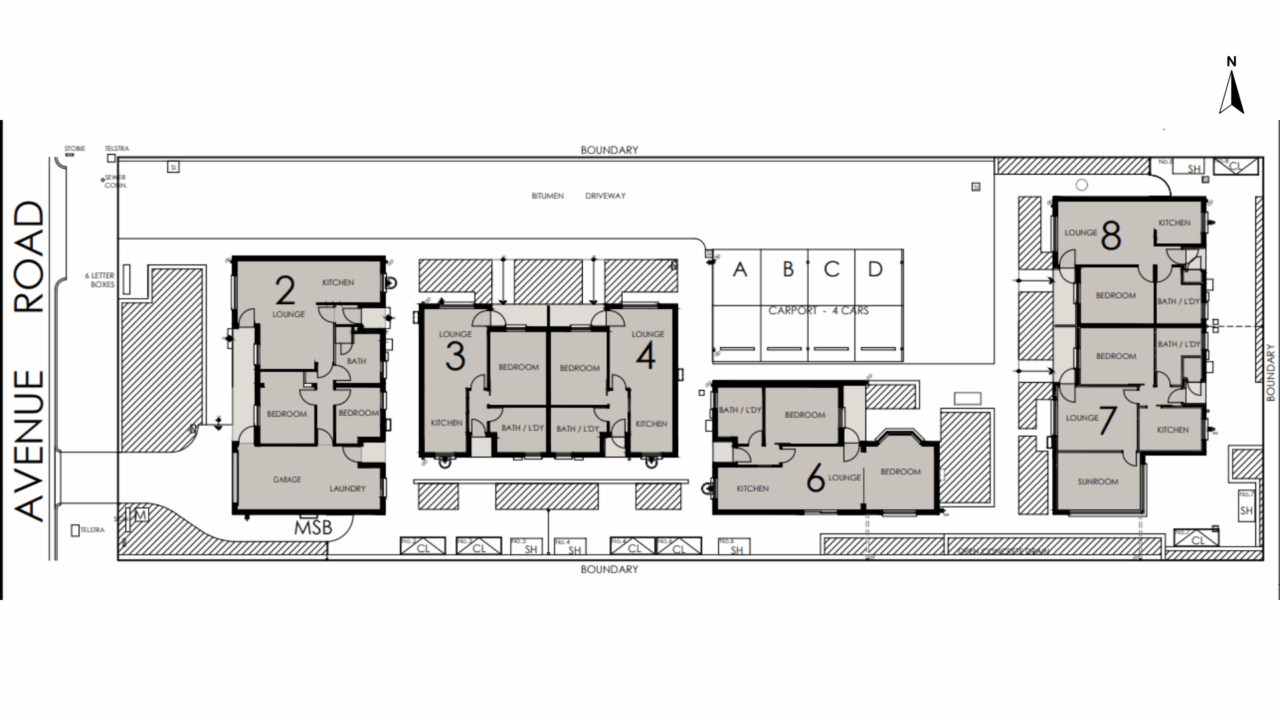
6 Avenue Road, Highgate
This beautifully presented one – bedroom unit offers an exceptional blend of comfort, practicality and lifestyle ease – providing a warm and welcoming space where everything you need is thoughtfully within reach. Its the ideal setting for independent living with all the benefits of a connected, low maintenance lifestyle.
Unit Features
- Comfortable carpeted bedroom: with built-in wardrobe
- Open-plan living and dining area: with hardwood flooring
- Excellent Storage: Plenty of space to keep your belongings organised
- Comfort year-round: Stay comfortable with air-conditioning and block-out blinds
- Fresh updates throughout: for a low-maintenance lifestyle
Village Features
- Easy access to public transport: with nearby bus stop
- A short stroll for Groceries : retail stores, and dining options
- Parks and Recreation: There are several parks nearby, offering opportunities for outdoor activities and relaxation
Don’t miss your opportunity to live in this beautifully maintained and incredibly convenient unit in Highgate. It’s time to get MORE out of life and experience the ease and accessibility this location offers.
Don’t just retire, thrive!
ECH Retirement Living | Get MORE out of life
Contact us at 8159 4700 for more information.
*Price Subject to change. Property subject to availability
Photos are for illustrative purposes only. Some images may show items not included with the property, such as furniture and décor.
Highlights
-
Air conditioning
-
1 bedroom
-
Living room
-
Parking
-
Pet friendly - Cats only
70% return on exit
ECH is a profit-for-purpose charity, reinvesting all profits to improve services for ageing South Australians. Refund estimates are based on living in an ECH retirement village for four or more years, excluding weekly maintenance fees. Shorter tenures may result in higher refunds.
Retirement Living Calculator
Your estimated refund amount
$280,000
| You pay upfront: | $400,000 | 100% |
| Your estimated refund amount would be: | $280,000 | 70% |
| We will retain a management fee of: | $120,000 | 30% |
This estimate is based on your accommodation period being 3 years or more. Weekly maintenance fees excluded. Shorter tenures may result in higher refunds. ECH is a profit-for-purpose charity, reinvesting all profits to improve services for ageing South Australians.
Enquire about this property
Property Enquiry
Highgate – Unit 4 Bright Court
Property Enquiry
Keep browsing
More properties in surrounding areas
-
-
-
-
-
-
-
Return to our property search to browse more properties.
Browse properties