Step into a relaxed and confident retirement lifestyle at ECH Kimberley Court where this welcoming two bedroom unit offers thoughtfully arranged spaces designed for ease and comfort. With practical features that support independent living and everyday conveniences, its a home that makes life simpler. Enjoy the freedom to embrace your next chapter in a setting that feels both secure and effortlessly comfortable.
Unit Features
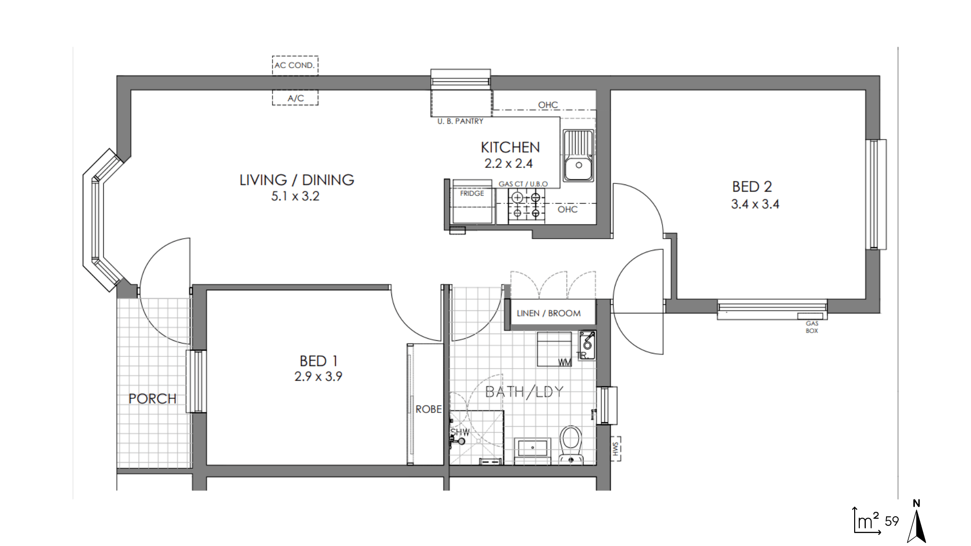
Open Plan Design: Spacious living areas perfect for relaxation and entertaining
Glossy Kitchen: A sleek, low-maintenance kitchen with ample storage and counter space
Floating Floorboards: Easy to clean and stylish flooring in the living areas
Carpeted Bedrooms: Cosy, spacious bedrooms with built in robes for ample storage
Bathroom with Laundry: Convenient and efficient design for everyday living
Block-Out Blinds: Ensure privacy with block-out blinds throughout
Split System Air Conditioning: Stay Comfortable year-round with a reverse cycle air conditioner
Village Features
Communal Garden: Offers a shared, peaceful outdoor space for residents to relax and enjoy nature.
Convenient Location: Ideally situated near public transport for easy access to the city and surrounding areas
Proximity to Shops: A short stroll to the nearest supermarket ensures all your essentials are within reach
Secure Village: Experience peace of mind within a safe and friendly retirement community
Don’t miss your opportunity to live in this beautifully maintained and incredibly convenient unit in Hove. It’s time to get MORE out of life and experience the ease and accessibility this location offers.
Don’t just retire, thrive!
ECH Retirement Living | Get MORE out of life
Contact us at 8159 4700 for more information.
*Price subject to change. Property subject to availability.
Photos are for illustrative purposes only. Some images may show items not included with the property, such as furniture and décor.
Highlights
Air conditioning
2 bedrooms
Living room
Parking
70% return on exit
ECH is a profit-for-purpose charity, reinvesting all profits to improve services for ageing South Australians. Refund estimates are based on living in an ECH retirement village for four or more years, excluding weekly maintenance fees. Shorter tenures may result in higher refunds.
Retirement Living Calculator
Your estimated refund amount
$280,000
You pay upfront:
$400,000
100%
Your estimated refund amount would be:
$280,000
70%
We will retain a management fee of:
$120,000
30%
This estimate is based on your accommodation period being 3 years or more. Weekly maintenance fees excluded. Shorter tenures may result in higher refunds. ECH is a profit-for-purpose charity, reinvesting all profits to improve services for ageing South Australians.