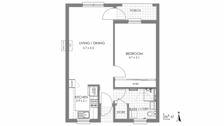
Welcome to Unit 19, Knightsbridge—a well-designed one-bedroom unit that offers a comfortable and convenient lifestyle in the tranquil suburb of Myrtle Bank. This unit features a spacious living and dining area, a modern kitchen with a pantry, and a generous bedroom with a built-in wardrobe. The combined bathroom and laundry add practicality, and the private porch extends your living space outdoors. A dedicated car park provides secure parking.
Unit Features
Spacious bedroom with built-in wardrobe
Open-plan living and dining area
Modern kitchen with pantry and easy access layout
Combined bathroom and laundry
Private porch for outdoor relaxation
Split system air-conditioning
Village Features
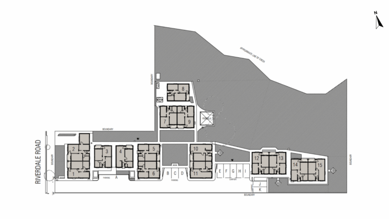
Serene, well-maintained gardens
Convenient public transport on Glen Osmond Road
Close to Burnside Village Shopping Centre
Nearby parks and local dining spots
Don’t miss your opportunity to live in this beautifully maintained and incredibly convenient unit in Myrtle Bank. It’s time to get MORE out of life and experience the ease and accessibility this location offers.
Don’t just retire, thrive!
ECH Retirement Living | Get MORE out of life
Contact us at 8159 4700 for more information.
*Price Subject to change. Property subject to availability
Photos are for illustrative purposes only. Some images may show items not included with the property, such as furniture and décor.
Highlights
Air conditioning
1 bedroom
Parking
Pet Free Village
Living room
70% return on exit
ECH is a profit-for-purpose charity, reinvesting all profits to improve services for ageing South Australians. Refund estimates are based on living in an ECH retirement village for four or more years, excluding weekly maintenance fees. Shorter tenures may result in higher refunds.
Retirement Living Calculator
Your estimated refund amount
$280,000
You pay upfront:
$400,000
100%
Your estimated refund amount would be:
$280,000
70%
We will retain a management fee of:
$120,000
30%
This estimate is based on your accommodation period being 3 years or more. Weekly maintenance fees excluded. Shorter tenures may result in higher refunds. ECH is a profit-for-purpose charity, reinvesting all profits to improve services for ageing South Australians.