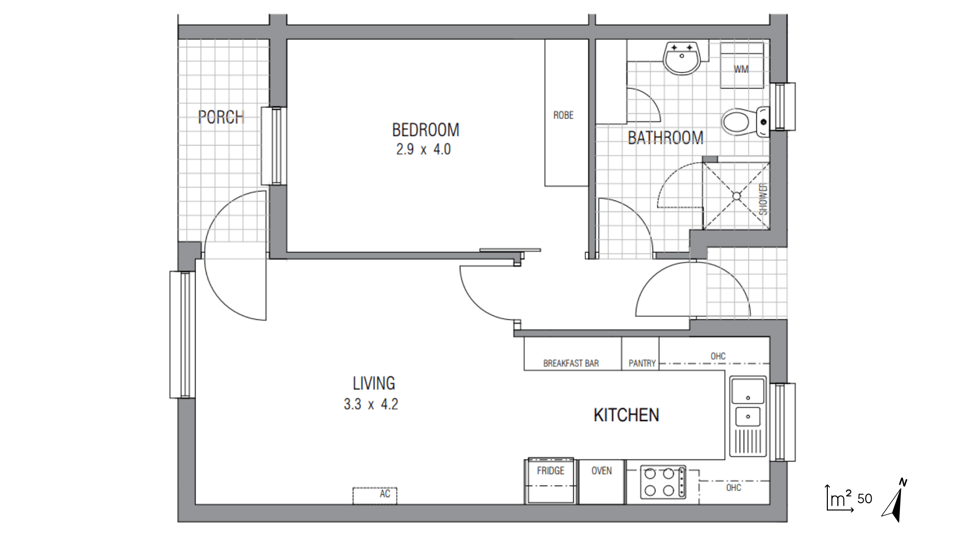
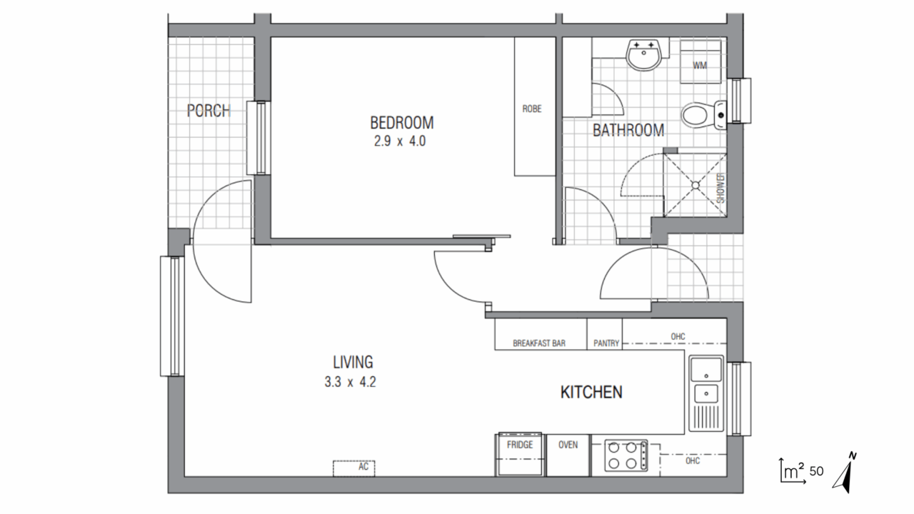
Myrtle Bank – Unit 5 Grainger Court
Peaceful Independent living in Myrtle Bank
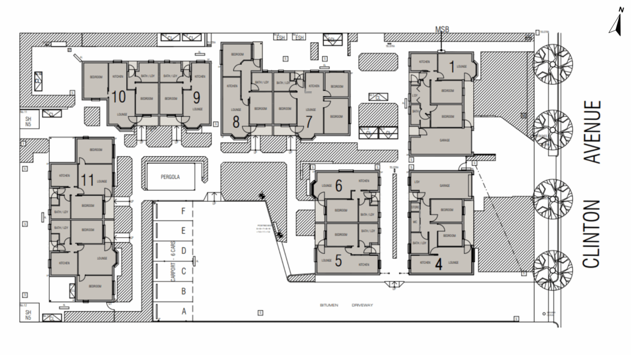
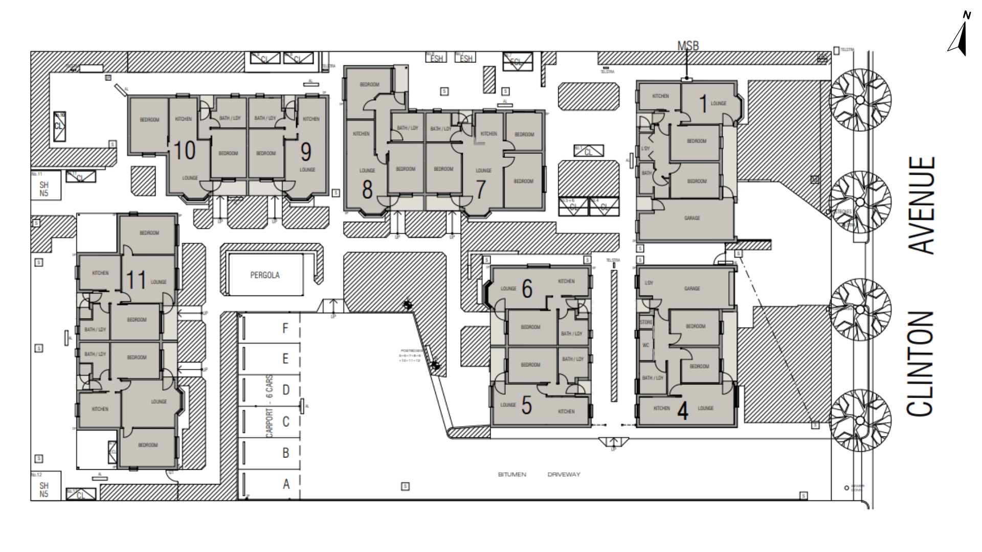
22 Clinton Avenue, Myrtle bank
Surrounded by beautifully maintained gardens and a peaceful village atmosphere, this residence offers a lifestyle that balances privacy with a sense of ease and comfort. Thoughtfully designed spaces and convenient access to nearby amenities allow you to enjoy each day at your own pace supported by a setting that feels calm, secure and welcoming.
Unit Features
- Open plan living and kitchen area
- Stylish floating floorboards in living areas
- Cosy carpeted bedroom with a built-in robe
- Convenient bathroom with laundry
- Block-out blinds throughout for privacy
- Split system reverse cycle air conditioner for year-round comfort
Village Features
- Communal pergola area for perfect social connection
- Serene, well-maintained gardens
- Ideally situated near public transport for easy access to the city and surrounding areas
Don’t miss your opportunity to live in this beautifully maintained and incredibly convenient unit in Myrtle Bank . It’s time to get MORE out of life and experience the ease and accessibility this location offers.
Don’t just retire, thrive!
ECH Retirement Living | Get MORE out of life
Contact us at 8159 4700 for more information.
*Price subject to change. Property subject to availability.
Photos are for illustrative purposes only. Some images may show items not included with the property, such as furniture and décor.
Highlights
-
Air conditioning
-
1 bedroom
-
Living room
-
Parking
70% return on exit
ECH is a profit-for-purpose charity, reinvesting all profits to improve services for ageing South Australians. Refund estimates are based on living in an ECH retirement village for four or more years, excluding weekly maintenance fees. Shorter tenures may result in higher refunds.
Retirement Living Calculator
Your estimated refund amount
$280,000
| You pay upfront: | $400,000 | 100% |
| Your estimated refund amount would be: | $280,000 | 70% |
| We will retain a management fee of: | $120,000 | 30% |
This estimate is based on your accommodation period being 3 years or more. Weekly maintenance fees excluded. Shorter tenures may result in higher refunds. ECH is a profit-for-purpose charity, reinvesting all profits to improve services for ageing South Australians.
Enquire about this property
Keep browsing
More properties in surrounding areas
-
-
-
-
-
-
Return to our property search to browse more properties.
Browse properties