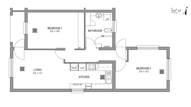
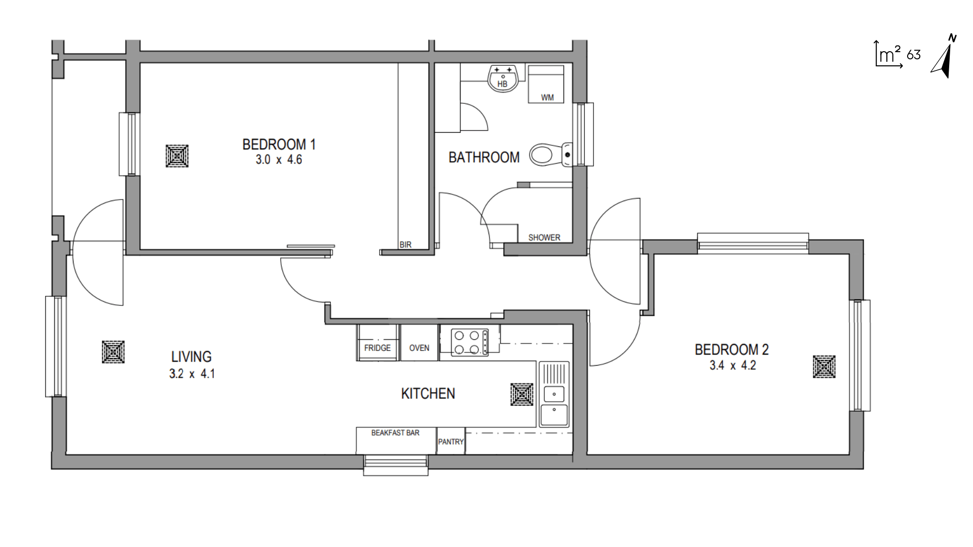
Unit 25, 7 Acraman Street, Victor Harbor
Mervyn Graham Lodge, Victor Harbor
Contact Agent-
2
-
1
-
Available
-
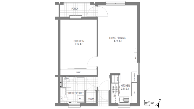
63
Contact Agent
Victor Harbor
Select a popular search term, or search for something else.